


immagine del progetto ricreata al computer (render), dove puoi vedere prima quello che andrai a realizzare, evitando brutte sorprese


misure degli arredi, utile per gestire al meglio gli acquisti senza rischiare di non rispettare l'idea del progetto

suggerimenti sul tipo di tinteggiature e arredamento con disegni in 3D per meglio valutare l'idea di progetto










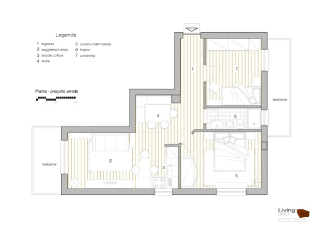
idea di progetto studiata su misura per te

Esempio di IDEA ARREDA large
